x

ZESPÓŁ AUTORSKI

Architektura
Generalny Projektant: arch. Jerzy Skrzypczak
Główni Projektanci: arch. Bogusław Chyliński
arch. Andrzej Dzierżawski
arch. Jacek Jedynak
arch. Zbigniew Pawelski
arch. Andrzej Skopiński
arch. Tadeusz Stefański
arch. Halina Świergocka

Konstrukcja
Główny Projektant: dr inż. Zbigniew Pawłowski

Komunikacja:
Główny Projektant: mgr inż. Jan Królikowski

Programowanie:
Główny Projektant: mgr inż. Jan Leher-Spławiński

Infrastruktura:
Główny Projektant: mgr. Inż. Tadeusz Rossman

Instalacje sanitarne:
Główny Projektant: dr. inż. Jacek Wąsowski

Instalacje elektryczne:
Główny Projektant: mgr inż. Jan Janeczko

DANE TECHNICZNE

Powierzchnia użytkowa ZRCW: 525 000 m²

Zestawienie kubatur:

  • Obszar pomiędzy ul. Wspólną a Al. Jerozolimskimi: 800 000 m³
  • Obszar pomiędzy ul. Chmielną a ul. Świętokrzyską: 1 500 000 m³
  • Dworzec Centralny PKP: 400 000 m³
  • razem 2 700 000 m³

Biuro Projektów
Biuro Projektów Budownictwa „WARCENT”.

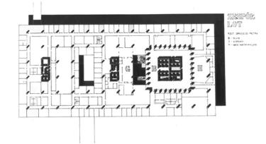
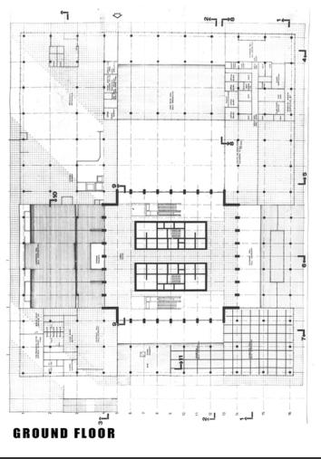
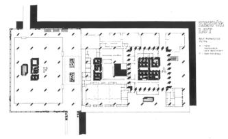
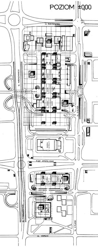
KONCEPCJA PROGRAMOWO - PRZESTRZENNA ZACHODNIEGO REJONU CENTRUM WARSZAWY 1970-1973

Kwartał w obrębie ulic Chałubińskiego, Jana Pawła II (dawniej Marchlewskiego), Świętokrzyskiej i Emilli Plater

info
KONCEPCJA PROGRAMOWO - PRZESTRZENNA ZACHODNIEGO REJONU CENTRUM WARSZAWY 1970-1973KONCEPCJA PROGRAMOWO - PRZESTRZENNA ZACHODNIEGO REJONU CENTRUM WARSZAWY 1970-1973
KONCEPCJA PROGRAMOWO - PRZESTRZENNA ZACHODNIEGO REJONU CENTRUM WARSZAWY 1970-1973KONCEPCJA PROGRAMOWO - PRZESTRZENNA ZACHODNIEGO REJONU CENTRUM WARSZAWY 1970-1973
KONCEPCJA PROGRAMOWO - PRZESTRZENNA ZACHODNIEGO REJONU CENTRUM WARSZAWY 1970-1973KONCEPCJA PROGRAMOWO - PRZESTRZENNA ZACHODNIEGO REJONU CENTRUM WARSZAWY 1970-1973
KONCEPCJA PROGRAMOWO - PRZESTRZENNA ZACHODNIEGO REJONU CENTRUM WARSZAWY 1970-1973KONCEPCJA PROGRAMOWO - PRZESTRZENNA ZACHODNIEGO REJONU CENTRUM WARSZAWY 1970-1973
KONCEPCJA PROGRAMOWO - PRZESTRZENNA ZACHODNIEGO REJONU CENTRUM WARSZAWY 1970-1973KONCEPCJA PROGRAMOWO - PRZESTRZENNA ZACHODNIEGO REJONU CENTRUM WARSZAWY 1970-1973
KONCEPCJA PROGRAMOWO - PRZESTRZENNA ZACHODNIEGO REJONU CENTRUM WARSZAWY 1970-1973KONCEPCJA PROGRAMOWO - PRZESTRZENNA ZACHODNIEGO REJONU CENTRUM WARSZAWY 1970-1973
KONCEPCJA PROGRAMOWO - PRZESTRZENNA ZACHODNIEGO REJONU CENTRUM WARSZAWY 1970-1973KONCEPCJA PROGRAMOWO - PRZESTRZENNA ZACHODNIEGO REJONU CENTRUM WARSZAWY 1970-1973
KONCEPCJA PROGRAMOWO - PRZESTRZENNA ZACHODNIEGO REJONU CENTRUM WARSZAWY 1970-1973KONCEPCJA PROGRAMOWO - PRZESTRZENNA ZACHODNIEGO REJONU CENTRUM WARSZAWY 1970-1973
KONCEPCJA PROGRAMOWO - PRZESTRZENNA ZACHODNIEGO REJONU CENTRUM WARSZAWY 1970-1973KONCEPCJA PROGRAMOWO - PRZESTRZENNA ZACHODNIEGO REJONU CENTRUM WARSZAWY 1970-1973
KONCEPCJA PROGRAMOWO - PRZESTRZENNA ZACHODNIEGO REJONU CENTRUM WARSZAWY 1970-1973KONCEPCJA PROGRAMOWO - PRZESTRZENNA ZACHODNIEGO REJONU CENTRUM WARSZAWY 1970-1973
KONCEPCJA PROGRAMOWO - PRZESTRZENNA ZACHODNIEGO REJONU CENTRUM WARSZAWY 1970-1973KONCEPCJA PROGRAMOWO - PRZESTRZENNA ZACHODNIEGO REJONU CENTRUM WARSZAWY 1970-1973
x

ZESPÓŁ AUTORSKI

arch. Zdzisław Hryniak
arch. Jacek Jedynak
arch. Jerzy Skrzypczak
arch. Jerzy Zawistowski

Komunikacja:
inż. Jan Królikowski

Zieleń:
inż. Barbara Tuchowska

KONCEPCJA OŚRODKA USŁUGOWEGO DZIELNICY ŻOLIBORZ

Warszawa, konkurs SARP - I nagroda 1973r.

info
KONCEPCJA OŚRODKA USŁUGOWEGO DZIELNICY ŻOLIBORZKONCEPCJA OŚRODKA USŁUGOWEGO DZIELNICY ŻOLIBORZ
KONCEPCJA OŚRODKA USŁUGOWEGO DZIELNICY ŻOLIBORZ
x

ZESPÓŁ AUTORSKI

Architektura
arch. Jerzy Skrzypczak
arch. Halina Świergocka-Kaim
arch. Wojciech Grzybowicz
arch. Jerzy Janczak (współpraca autorska)
arch. Jan Zdanowicz(współpraca autorska)

Konstrukcja
dr inż. Anna Chrabczyńska
prof. dr hab. Józef Sieczkowski

Dane techniczne:

  • Powierzchnia całkowita budynku: 83 000 m²
  • Kubatura: 265 500 m³
  • Wysokość: 140 m
  • Ilość kondygnacji: 45 + 2 podziemne

Biura Projektowe
Miejskie Biuro Projektów „ WARCENT” SA - Warszawa
BPA Bygproduktion AB – Sztokholm

Inwestor:
PHZ INTRACO

BUDYNEK BANKU HANDLOWEGO I CENTRAL HANDLU ZAGRANICZNEGO

Warszawa, ul. Chałubińskiego 8, 1975-1978

info
BUDYNEK BANKU HANDLOWEGO I CENTRAL HANDLU ZAGRANICZNEGOBUDYNEK BANKU HANDLOWEGO I CENTRAL HANDLU ZAGRANICZNEGO
BUDYNEK BANKU HANDLOWEGO I CENTRAL HANDLU ZAGRANICZNEGOBUDYNEK BANKU HANDLOWEGO I CENTRAL HANDLU ZAGRANICZNEGO
BUDYNEK BANKU HANDLOWEGO I CENTRAL HANDLU ZAGRANICZNEGOBUDYNEK BANKU HANDLOWEGO I CENTRAL HANDLU ZAGRANICZNEGO
BUDYNEK BANKU HANDLOWEGO I CENTRAL HANDLU ZAGRANICZNEGOBUDYNEK BANKU HANDLOWEGO I CENTRAL HANDLU ZAGRANICZNEGO
x

ZESPÓŁ AUTORSKI

Architektura
arch. Andrzej Bielobradek.
arch. Jerzy Skrzypczak
arch. Tadeusz Stefański

Współpraca w II etapie realizacji
arch. E. Majorinc, arch. J. Targowski

Konstrukcja
dr inż. Anna Chrabczyńska
prof. dr hab. Józef Sieczkowski

Biura Projektowe
Miejskie Biuro Projektów „WARCENT” SA
ILBAU – Wiedeń
Cementation International Limited - Generalny Wykonawca

Inwestor
PLL LOT - I etap
LIM CENTER (LOT, ILBAU, MARRIOTT) - II etap

Dane techniczne:

  • Powierzchnia całkowita: 110 000 m²
  • Kubatura: 430 000 m³
  • Wysokość: 143 m
  • Ilość kondygnacji nadziemnych: 45
  • Ilość jednostek hotelowych: 1100
  • Ilość jednostek biurowych: 492

Komplex LIM – LOT, ILBAU, MARRIOTT

Al. Jerozolimskie 65/79
I etap realizacji - 1977-1981
II etap realizacji - 1987-1989

info
Komplex LIM – LOT, ILBAU, MARRIOTTKomplex LIM – LOT, ILBAU, MARRIOTT
Komplex LIM – LOT, ILBAU, MARRIOTTKomplex LIM – LOT, ILBAU, MARRIOTT
Komplex LIM – LOT, ILBAU, MARRIOTTKomplex LIM – LOT, ILBAU, MARRIOTT
Komplex LIM – LOT, ILBAU, MARRIOTTKomplex LIM – LOT, ILBAU, MARRIOTT
Komplex LIM – LOT, ILBAU, MARRIOTTKomplex LIM – LOT, ILBAU, MARRIOTT
x

ZESPÓŁ AUTORSKI

arch. Wojciech Hermanowicz
arch. Jerzy Janczak
arch. Jerzy Skrzypczak
arch. Halina Świergocka-Kaim
arch. Tadeusz Szumielewicz

Koncepcja ukształtowania architektoniczno-przestrzennego ul. Friedrichstrasse w Centrum Berlina

Konkurs międzynarodowy - 1981 r. – wyróżnienie

info
Koncepcja ukształtowania architektoniczno-przestrzennego ul. Friedrichstrasse w Centrum BerlinaKoncepcja ukształtowania architektoniczno-przestrzennego ul. Friedrichstrasse w Centrum Berlina
Koncepcja ukształtowania architektoniczno-przestrzennego ul. Friedrichstrasse w Centrum BerlinaKoncepcja ukształtowania architektoniczno-przestrzennego ul. Friedrichstrasse w Centrum Berlina
Koncepcja ukształtowania architektoniczno-przestrzennego ul. Friedrichstrasse w Centrum BerlinaKoncepcja ukształtowania architektoniczno-przestrzennego ul. Friedrichstrasse w Centrum Berlina
x

ZESPÓŁ AUTORSKI

arch. Jerzy Janczak
arch. Jerzy Skrzypczak

Dane techniczne:

  • Powierzchnia budynku: 124 000 m²
  • Kubatura: 384 000 m³

Biuro Projektów
Miejskie Biuro Projektów „WARCENT” S.A.

Inwestor
PHZ DROMEX

Studium zabudowy wysokiej przy Dworcu Centralnym

Hotel „Centralny” Warszawa ul. Chałubińskiego - 1986

info
Studium zabudowy wysokiej przy Dworcu CentralnymStudium zabudowy wysokiej przy Dworcu Centralnym
Studium zabudowy wysokiej przy Dworcu CentralnymStudium zabudowy wysokiej przy Dworcu Centralnym
Studium zabudowy wysokiej przy Dworcu CentralnymStudium zabudowy wysokiej przy Dworcu Centralnym
x

ZESPÓŁ AUTORSKI

Architektura
arch. Jerzy Skrzypczak
arch. Andrzej Darski
arch. Wojciech Bagiński

Konstrukcja
dr inż. Anna Chrabczyńska
prof. dr hab. Józef Sieczkowski

Dane techniczne:

  • Powierzchnia budynku: 16 000 m²
  • Kubatura: 84 000 m³

Biuro Projektów
Miejskie Biuro Projektów „WARCENT” S.A
PORR. Wiedeń

Inwestor
PHZ „PEWEX”

DOM HANDLOWY „CITY SHOPING CENTER” Warszawa

ul. Złota - 1987-1990

info
DOM HANDLOWY „CITY SHOPING CENTER” WarszawaDOM HANDLOWY „CITY SHOPING CENTER” Warszawa
DOM HANDLOWY „CITY SHOPING CENTER” WarszawaDOM HANDLOWY „CITY SHOPING CENTER” Warszawa
DOM HANDLOWY „CITY SHOPING CENTER” Warszawa
x

ZESPÓŁ AUTORSKI

arch. Jerzy Janczak
arch. Maciej Piechotka
arch. Jerzy Skrzypczak
arch. Andrzej Darski

współpraca projektowa
arch. Mieczysław Zientarski

Konstrukcja
mgr inż. Witold Rybiński
mgr inż. Marek Dobrowolski

Dane techniczne:

  • Powierzchnia budynku: 24 000 m²
  • Kubatura: 84 000 m³

Biuro Projektów
Miejskie Biuro Projektów „WARCENT” S.A

Inwestor
PBank Ochrony Środowiska

Centrum Bankowo - Biurowe „Kaskada”

Warszawa, ul. Jana Pawła II – 1998 - 1996
nagroda II stopnia MSWiA

info
Centrum Bankowo - Biurowe „Kaskada”Centrum Bankowo - Biurowe „Kaskada”
Centrum Bankowo - Biurowe „Kaskada”Centrum Bankowo - Biurowe „Kaskada”
Centrum Bankowo - Biurowe „Kaskada”Centrum Bankowo - Biurowe „Kaskada”
Centrum Bankowo - Biurowe „Kaskada”Centrum Bankowo - Biurowe „Kaskada”
załączam zgubę, a w stopce proszę w kolejności alfabetycznej dopisać autorów rysunków: Krzysztof Brzeziński, Maciej Kalinowski, Witold Wiśniewski przy renderingach: zamiast Amatenko - Artur Mateńko.

Materiały użyte do budowy strony pochodzą ze zbiorów archiwalnych autorów oraz BPA J&J. Autorami rysunków są: Krzysztof Brzeziński, Adam Horodyński, Maciej Kalinowski, Tomasz Lechowski, Marek Młodecki, Dariusz Stasiak, Witold Wiśniewski. Autorami renderingów są: GMS-Studio, FAMA, Artur Mateńko. Zdjęcia: Andrzej Pisarski, Marcin Czechowicz – Murator

Projekty BPA J&J oraz wszelkie materiały zawarte na stronie BPA J&J chronione są prawem autorskim.