Projekty studialne i koncepcyjne

x

ZESPÓŁ AUTORSKI

Architektura
arch. Jerzy Janczak
arch. Jerzy Skrzypczak

Współpraca projektowa i graficzna
arch. Andrzej Karwan
arch. Monika Kościelniak
arch. Tomasz Jemioł

Dane techniczne

  • Powierzchnia budynku: 24 000 m²
  • Kubatura: 84 000m3

Inwestor
PKO BP

Projekt koncepcyjny budynku PKO BP „ROTUNDA TOWER”

ul. Marszałkowska /Al. Jerozolimskie – 2000 r.

info
Projekt koncepcyjny budynku PKO BP „ROTUNDA TOWER”Projekt koncepcyjny budynku PKO BP „ROTUNDA TOWER”
x

ZESPÓŁ AUTORSKI

Architektura
arch. Jerzy Janczak
arch. Krzysztof Ozimek - AZO
arch. Jerzy Skrzypczak

Współpraca projektowa i graficzna
arch. Andrzej Karwan
arch. Monika Kościelniak

Dane techniczne

  • Powierzchnia budynku: 120 000 m²
  • Kubatura: 184 000m3

Inwestor
PZU

Studium zabudowy wysokiej przy rondzie ONZ

Warszawa, ul. Świętokrzyska / Al. Jana Pawła II 2000 - 2001

info
Studium zabudowy wysokiej przy rondzie ONZStudium zabudowy wysokiej przy rondzie ONZ
Studium zabudowy wysokiej przy rondzie ONZStudium zabudowy wysokiej przy rondzie ONZ
Studium zabudowy wysokiej przy rondzie ONZStudium zabudowy wysokiej przy rondzie ONZ
Studium zabudowy wysokiej przy rondzie ONZStudium zabudowy wysokiej przy rondzie ONZ
x

ZESPÓŁ AUTORSKI

Architektura
arch. Jerzy Janczak
arch. Jerzy Skrzypczak

Współpraca projektowa i graficzna
arch. Andrzej Karwan
arch. Monika Kościelniak

Dane techniczne

  • Powierzchnia budynku: 204 000 m²
  • Kubatura: 871 000m3

Inwestor
SOTI CONTINENTAL

Koncepcja programowo – przestrzenna zespołu biurowo- mieszkalno- hotelowo –usługowego

Warszawa, ul.Towarowa - 2008 r.

info
Koncepcja programowo – przestrzenna zespołu biurowo- mieszkalno- hotelowo –usługowegoKoncepcja programowo – przestrzenna zespołu biurowo- mieszkalno- hotelowo –usługowego
Koncepcja programowo – przestrzenna zespołu biurowo- mieszkalno- hotelowo –usługowegoKoncepcja programowo – przestrzenna zespołu biurowo- mieszkalno- hotelowo –usługowego
Koncepcja programowo – przestrzenna zespołu biurowo- mieszkalno- hotelowo –usługowegoKoncepcja programowo – przestrzenna zespołu biurowo- mieszkalno- hotelowo –usługowego
Koncepcja programowo – przestrzenna zespołu biurowo- mieszkalno- hotelowo –usługowegoKoncepcja programowo – przestrzenna zespołu biurowo- mieszkalno- hotelowo –usługowego
x

ZESPÓŁ AUTORSKI

arch. Jerzy Janczak
arch. Jerzy Skrzypczak

Współpraca projektowa i graficzna
arch. Artur Mateńko
arch. Andrzej Karwan
arch. Małgorzata Brych
arch. Monika Kościelniak
arch. Karolina Raczkowska

Dane techniczne

  • Powierzchnia zespołu: 33 000 m²
  • Kubatura: 110 000m3

Inwestor
PROLOG SP. Z O.O.

Projekt koncepcyjny zespołu biurowego TBP

Warszawa - Rembertów, ul. Strażacka - 2009 - 2010

info
Projekt koncepcyjny zespołu biurowego TBPProjekt koncepcyjny zespołu biurowego TBP
Projekt koncepcyjny zespołu biurowego TBPProjekt koncepcyjny zespołu biurowego TBP
Projekt koncepcyjny zespołu biurowego TBPProjekt koncepcyjny zespołu biurowego TBP
Projekt koncepcyjny zespołu biurowego TBPProjekt koncepcyjny zespołu biurowego TBP
x

ZESPÓŁ AUTORSKI

arch. Jerzy Janczak
arch. Jerzy Skrzypczak

Współpraca autorska:
arch. Artur Mateńko

Współpraca projektowa i graficzna
arch. Małgorzata Brych
arch. Andrzej Karwan
arch. Monika Kościelniak
arch. Karolina Gałek
arch. Joanna Poniedzielska

Dane techniczne

  • Powierzchnia całkowita zespołu: 260 000 m²
  • Kubatura: 900 000m3

Inwestor
WARSAW PLAZA HOLDING

Koncepcja programowo-przestrzenna kompleksu biurowo- hotelowo- usługowego TTC

Warszawa, ul. Chałubińskiego 8 - 2010 - 2011

info
Koncepcja programowo-przestrzenna kompleksu biurowo- hotelowo- usługowego TTCKoncepcja programowo-przestrzenna kompleksu biurowo- hotelowo- usługowego TTC
Koncepcja programowo-przestrzenna kompleksu biurowo- hotelowo- usługowego TTCKoncepcja programowo-przestrzenna kompleksu biurowo- hotelowo- usługowego TTC
Koncepcja programowo-przestrzenna kompleksu biurowo- hotelowo- usługowego TTCKoncepcja programowo-przestrzenna kompleksu biurowo- hotelowo- usługowego TTC
Koncepcja programowo-przestrzenna kompleksu biurowo- hotelowo- usługowego TTCKoncepcja programowo-przestrzenna kompleksu biurowo- hotelowo- usługowego TTC
x

ZESPÓŁ AUTORSKI

arch. Jerzy Janczak
arch. Jerzy Skrzypczak

Współpraca projektowa i graficzna
arch. Andrzej Karwan
arch. Monika Kościelniak
arch. Artur Mateńko
arch. Joanna Poniedzielska

Dane techniczne

  • Powierzchnia całkowita budynku: 29 000 m²
  • Kubatura: 85 000 m3
  • Wysokość: 90 000 m

Projekt koncepcyjny budynku apatramentowego z usługami - GT

Warszawa, ul. Grzybowska 11 - 2010 - 2014

info
Projekt koncepcyjny budynku apatramentowego z usługami - GTProjekt koncepcyjny budynku apatramentowego z usługami - GT
Projekt koncepcyjny budynku apatramentowego z usługami - GTProjekt koncepcyjny budynku apatramentowego z usługami - GT
Projekt koncepcyjny budynku apatramentowego z usługami - GTProjekt koncepcyjny budynku apatramentowego z usługami - GT

Projekty budowlane i realizacyjne

x

ZESPÓŁ AUTORSKI

Architektura
arch. Jerzy Janczak, arch. Jerzy Skrzypczak - BPA J&J
Kohn – Pedersen – Fox Associate P.C. New York
A.Epstein and Sons International Inc. Chicago

Konstrukcja
prof. dr hab. Adam Zbigniew Pawłowski
dr hab. Jan Pawlikowski

A.L. Bajsec, Chicago
S.T. Ball, Chicago

Dane techniczne
Powierzchnia całkowita budynku: 71 000 m²
Kubatura: 304 500 m3

Inwestor
GOLUB, EPSTEIN, RACZKIEWICZ

PROJEKT 1992 - 1995

Budynek Warszawskiego Centrum Finansowego

Warszawa, ul. Emilii Plater 53

info
PROJEKT 1992 - 1995PROJEKT 1992 - 1995
PROJEKT 1992 - 1995PROJEKT 1992 - 1995
PROJEKT 1992 - 1995PROJEKT 1992 - 1995
PROJEKT 1992 - 1995PROJEKT 1992 - 1995
PROJEKT 1992 - 1995PROJEKT 1992 - 1995
x

ZESPÓŁ AUTORSKI

Architektura
arch. Jerzy Janczak, arch. Jerzy Skrzypczak - BPA J&J
Kohn – Pedersen – Fox Associate P.C. New York
A.Epstein and Sons International Inc. Chicago

Konstrukcja
prof. dr hab. Adam Zbigniew Pawłowski
dr hab. Jan Pawlikowski

A.L. Bajsec, Chicago
S.T. Ball, Chicago

Dane techniczne
Powierzchnia całkowita budynku: 71 000 m²
Kubatura: 304 500 m3

Inwestor
GOLUB, EPSTEIN, RACZKIEWICZ

REALIZACJA 1996 - 1998

Budynek Warszawskiego Centrum Finansowego

Warszawa, ul. Emilii Plater 53

info
REALIZACJA 1996 - 1998REALIZACJA 1996 - 1998
REALIZACJA 1996 - 1998REALIZACJA 1996 - 1998
x

ZESPÓŁ AUTORSKI

Architektura
arch. Jerzy Janczak
arch. Maciej Piechotko
arch. Jerzy Skrzypczak

Konstrukcja
mgr inż. Marek Frączkowski

A.L. Bajsec, Chicago
S.T. Ball, Chicago

Dane techniczne
Powierzchnia użytkowa biurowa: 4 000 m²
Powierzchnia użytkowa handlowa: 2 000 m²
Kubatura: 24 000 m3

Inwestor
GEBO POLSKA SP. Z O.O.

PROJEKT 1995 - 1996

Budynek biurowo – handlowy GEBO (aktualnie GUSS – EX)

Warszawa, Al. Jerozolimskie

info
x

ZESPÓŁ AUTORSKI

Architektura
arch. Jerzy Janczak
arch. Maciej Piechotko
arch. Jerzy Skrzypczak

Konstrukcja
mgr inż. Marek Frączkowski

A.L. Bajsec, Chicago
S.T. Ball, Chicago

Dane techniczne
Powierzchnia użytkowa biurowa: 4 000 m²
Powierzchnia użytkowa handlowa: 2 000 m²
Kubatura: 24 000 m3

Inwestor
GEBO POLSKA SP. Z O.O.

REALIZACJA 1996 - 1997

Budynek biurowo – handlowy GEBO (aktualnie GUSS – EX)

Warszawa, Al. Jerozolimskie

info
REALIZACJA 1996 - 1997REALIZACJA 1996 - 1997
REALIZACJA 1996 - 1997REALIZACJA 1996 - 1997
REALIZACJA 1996 - 1997REALIZACJA 1996 - 1997
REALIZACJA 1996 - 1997REALIZACJA 1996 - 1997
x

ZESPÓŁ AUTORSKI

Architektura
arch. Jerzy Janczak
arch. Jerzy Skrzypczak

Współpraca projektowa i graficzna
arch. Andrzej Karwan
arch. Monika Kościelniak
inż. Marta Kosmatko

Konstrukcja
mgr inż. Marek Frączkowski

Dane techniczne
Powierzchnia użytkowa: 18 200 m²
Kubatura: 57 500 m3

Inwestor
ŚRÓDMIEJSKA SPÓŁDZIELNIA MIESZKANIOWA - Warszawa

PROJEKT 1996-1998

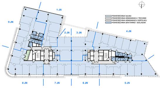
Budynek mieszkalno-usługowy G-6

Warszawa, ul. Grzybowska 12/14

info
PROJEKT 1996-1998PROJEKT 1996-1998
PROJEKT 1996-1998PROJEKT 1996-1998
x

ZESPÓŁ AUTORSKI

Architektura
arch. Jerzy Janczak
arch. Jerzy Skrzypczak

Współpraca projektowa i graficzna
arch. Andrzej Karwan
arch. Monika Kościelniak
inż. Marta Kosmatko

Konstrukcja
mgr inż. Marek Frączkowski

Dane techniczne
Powierzchnia użytkowa: 18 200 m²
Kubatura: 57 500 m3

Inwestor
ŚRÓDMIEJSKA SPÓŁDZIELNIA MIESZKANIOWA - Warszawa

REALIZACJA 2000-2003

Budynek mieszkalno-usługowy G-6

Warszawa, ul. Grzybowska 12/14

info
REALIZACJA 2000-2003REALIZACJA 2000-2003
REALIZACJA 2000-2003REALIZACJA 2000-2003
REALIZACJA 2000-2003REALIZACJA 2000-2003
REALIZACJA 2000-2003REALIZACJA 2000-2003
x

ZESPÓŁ AUTORSKI

Architektura
arch. Jerzy Janczak
arch. Jerzy Skrzypczak

Współpraca projektowa i graficzna
arch. Andrzej Karwan
arch. Monika Kościelniak
inż. Marta Kosmatko

Konstrukcja
mgr inż. Marek Frączkowski

Dane techniczne
Powierzchnia całkowita: 20 000 m²
Kubatura: 66 500 m3

Inwestor
ŚRÓDMIEJSKA SPÓŁDZIELNIA MIESZKANIOWA - Warszawa

PROJEKT 2000 – 2002

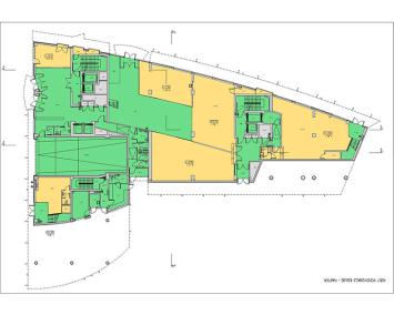
Budynek mieszkalno – usługowy G-3

Warszawa, ul. Grzybowska 3

info
PROJEKT 2000 – 2002PROJEKT 2000 – 2002
PROJEKT 2000 – 2002PROJEKT 2000 – 2002
PROJEKT 2000 – 2002PROJEKT 2000 – 2002
x

ZESPÓŁ AUTORSKI

Architektura
arch. Jerzy Janczak
arch. Jerzy Skrzypczak

Współpraca projektowa i graficzna
arch. Andrzej Karwan
arch. Monika Kościelniak
inż. Marta Kosmatko

Konstrukcja
mgr inż. Marek Frączkowski

Dane techniczne
Powierzchnia całkowita: 20 000 m²
Kubatura: 66 500 m3

Inwestor
ŚRÓDMIEJSKA SPÓŁDZIELNIA MIESZKANIOWA - Warszawa

REALIZACJA 2003 – 2006

Budynek mieszkalno – usługowy G-3

Warszawa, ul. Grzybowska 3

info
REALIZACJA 2003 – 2006REALIZACJA 2003 – 2006
REALIZACJA 2003 – 2006REALIZACJA 2003 – 2006
REALIZACJA 2003 – 2006REALIZACJA 2003 – 2006
REALIZACJA 2003 – 2006REALIZACJA 2003 – 2006
REALIZACJA 2003 – 2006REALIZACJA 2003 – 2006
REALIZACJA 2003 – 2006REALIZACJA 2003 – 2006
x

Projekt budowlany wraz z fazą wykonawczą 2004 – 2007
(do realizacji nie doszło)

ZESPÓŁ AUTORSKI

Architektura
arch. Jerzy Janczak
arch. Jerzy Skrzypczak

Współpraca projektowa i graficzna
arch. Andrzej Karwan
arch. Monika Kościelniak
arch. Filip Karczemski
inż. Marta Kosmatko

Konstrukcja
mgr inż. Jacek Andrzejewski
mgr inż. Jerzy Błażeczek

Konstrukcja podziemia
mgr inż. Franciszek Misiurek
mgr inż. Urszula Gawlewicz

Dane techniczne
Powierzchnia użytkowa: 24 000 m²
Kubatura: 66 500 m3

Inwestor
CBD INTERNATIONALE SP. Z O.O.

PROJEKT 2004 – 2007

Budynek biurowo-usługowo - handlowy CBD

Warszawa, ul. Marszałkowska / Świętokrzyska / Zielna

info
PROJEKT 2004 – 2007PROJEKT 2004 – 2007
PROJEKT 2004 – 2007PROJEKT 2004 – 2007
PROJEKT 2004 – 2007PROJEKT 2004 – 2007
PROJEKT 2004 – 2007PROJEKT 2004 – 2007
x

ZESPÓŁ AUTORSKI

Architektura
arch. Jerzy Janczak
arch. Jerzy Skrzypczak

Współpraca projektowa i graficzna
arch. Artur Mateńko
arch. Andrzej Karwan
arch. Małgorzata Brych
arch. Monika Kościelniak
arch. Karolina Gałek

Konstrukcja
mgr inż. Jerzy Błażeczek
mgr inż. Anna Wera

Dane techniczne
Powierzchnia użytkowa: 41 500 m²
Kubatura: 152 000 m3

Inwestor
DBC SP. Z O.O.

PROJEKT 2007 – 2009

Budynek Biurowo - usługowy DBC

Warszawa, ul. Puławska / Domaniewska
Realizacja rozpoczęta w 2014

info
PROJEKT 2007 – 2009PROJEKT 2007 – 2009
PROJEKT 2007 – 2009PROJEKT 2007 – 2009
PROJEKT 2007 – 2009PROJEKT 2007 – 2009
PROJEKT 2007 – 2009PROJEKT 2007 – 2009
PROJEKT 2007 – 2009PROJEKT 2007 – 2009
PROJEKT 2007 – 2009PROJEKT 2007 – 2009
PROJEKT 2007 – 2009PROJEKT 2007 – 2009
PROJEKT 2007 – 2009PROJEKT 2007 – 2009

Materiały użyte do budowy strony pochodzą ze zbiorów archiwalnych autorów oraz BPA J&J. Autorami rysunków są: Krzysztof Brzeziński, Adam Horodyński, Maciej Kalinowski, Tomasz Lechowski, Marek Młodecki, Dariusz Stasiak, Witold Wiśniewski. Autorami renderingów są: GMS-Studio, FAMA, Artur Mateńko. Zdjęcia: Andrzej Pisarski, Jerzy Janczak

Projekty BPA J&J oraz wszelkie materiały zawarte na stronie BPA J&J chronione są prawem autorskim.